architect:
Iar.ariful Islam & team
client:
Private
YEAR
2025
project type:
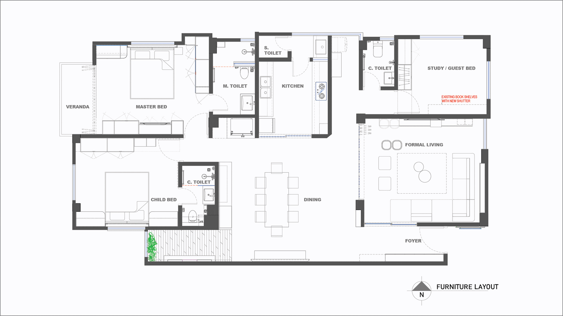
Apartment Renovation
STATUS:
completed
SCALE
2000 sft

Modern Apartment Renovation in Dhanmondi | 2000 Sq Ft of Heritage & Elegance. apartment renovation in Dhanmondi Blending traditional elements with contemporary aesthetics, we crafted a home where heritage and modern living coexist in harmony.

.