architect:
Iar.ariful Islam & team
client:
Private
YEAR
2025
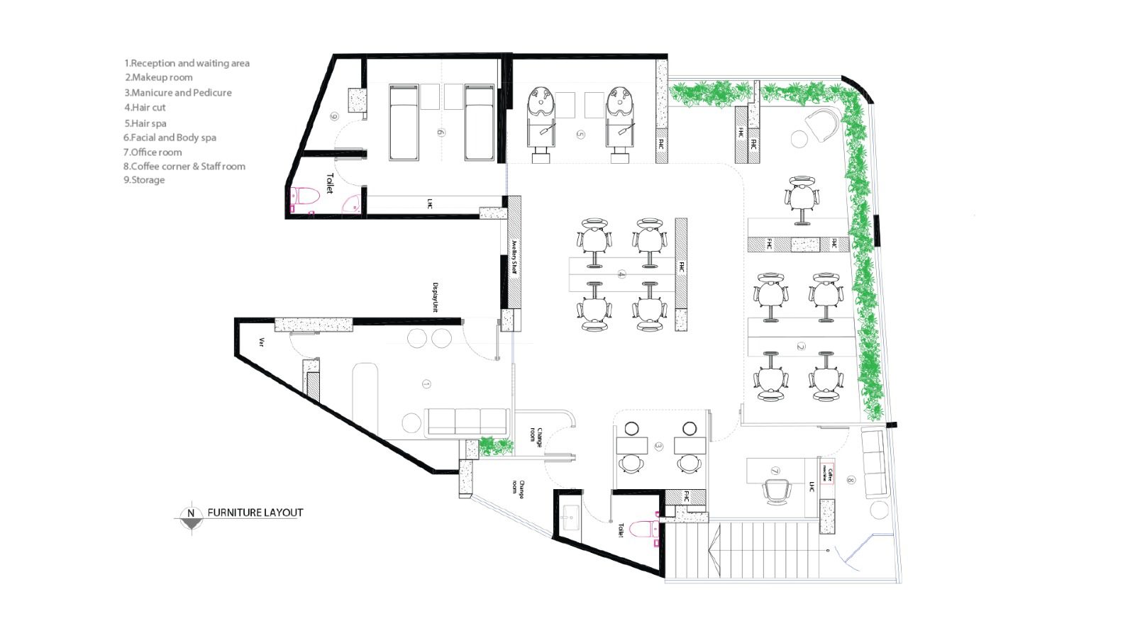
project type:
Beauty salon
STATUS:
completed
SCALE
3000 sft

Our latest beauty salon interior design project is designed to redefine the salon experience — blending earthy tones, natural textures, and layered lighting to create a soothing jungle-inspired vibe.

This is more than just a salon… it’s a complete experience where design meets wellness. From the calming color palette to the thoughtfully crafted interiors, every detail has been curated to bring comfort, style, and sophistication together.

 

 

Highlights of this project:

  • Earthy, nature-inspired textures
  • Relaxing jungle vibe
  • Layered, ambient lighting design
  • Elegant and modern spatial layout
  • Experience-first interior approach

If you’re looking for inspiration for your luxury salon or spa interior design, this video is for you!

👉 Don’t forget to like, share, and subscribe for more interior design inspirations.